Lokal użytkowy Szczecin Żelechowa, Dębogórska
Szczecin Pokaż na mapie ›
Dodane: Środa, 01 Kwiecień, 2026 16:17
19 880 zł
Szczegóły ogłoszenia
- Kategoria: Biura i lokale / Do wynajęcia
- Przeznaczenie:Inne przeznaczenie
- Powierzchnia:380 m2
- Sprzedaż:Pośrednik
- Cena: 19 880 zł
Opis oferty
Hala dostępna od 01.06.2026r.Możliwość prezentacji po wcześniej umówionym terminie.
Zapraszam do zapoznania się ofertą hali do wynajęcia znajdującej się przy ul. Dębogórskiej.
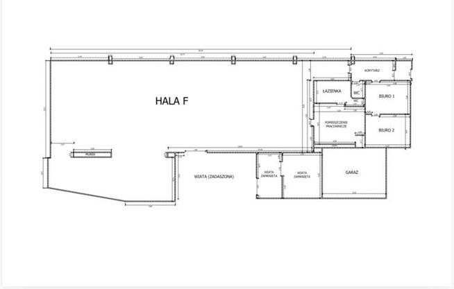
Hala składa się z:
-pomieszczenia open space,
-2 pomieszczeń biurowych przy wejściu do hali (4,4mx3,3m),
-pomieszczenia socjalnego z łazienkami,
Ogrzewanie gazowe w postaci centralnego ogrzewania i nadmuchu.
Teren na noc zamykany oraz monitorowany.
Możliwości wynajmu:
-biura: 80m2 - 42zł/m2 = 3360 zł/netto
-hala: 300m2 - 37zł/m2 = 11100 zł/netto
-wiata obok hali: 92m2 - 22zł/m2 = 2024zł/netto
-teren obok hali: 283m2 - 12zł/m2 = 3396 zł/netto
Cena: 19 880 zł/netto.
Faktura VAT.
Kaucja: 40 000 zł.
Oliwia Oleszkiewicz
Golden Hawk
Tel.: +48 732 - pokaż numer telefonu -
Zapraszam na prezentację!
DANE KONTAKTOWE:
Oliwia Oleszkiewicz
732 - pokaż numer telefonu -
@
Treść niniejszego ogłoszenia nie stanowi oferty handlowej w rozumieniu Kodeksu Cywilnego.
Numer oferty: 60854
Powiadom o podobnych ogłoszeniach
Lokalizacja: Szczecin
Kategoria: Nieruchomości » Biura i lokale » Do wynajęcia
Cena: od 17000 zł do 23000 zł Powierzchnia : od 323 m2 do 437 m2
Chcę otrzymywać powiadomienia o nowych ofertach
- Wypromuj ogłoszenie
- Zgłoś naruszenie
- Drukuj ulotkę
- Edytuj/usuń ogłoszenie
- Udostępnij ogłoszenie
- Dodaj na Facebook


























