OFERTA DEWELOPERSKA, Unikalny projekt nad Odrą
Szczecin Pokaż na mapie ›
Dodane: Niedziela, 08 Luty, 2026 09:20
633 490 zł
14398 zł/m2
Szczegóły ogłoszenia
- Kategoria: Mieszkania / Sprzedaż
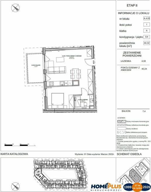
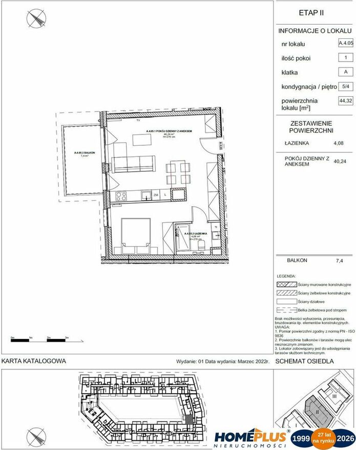
- Powierzchnia:44 m2
- Liczba pokoi:1 pokój
- Zabudowa:Apartamentowiec
- Tech. budowy:Inne
- Piętro :4 piętro
- Liczba pięter:Wieżowiec
- Rynek:Wtórny
- Rok budowy:2024
- Sprzedaż:Pośrednik
- Inf. dodatkowe:Balkon
- Cena: 633 490 zł / 14398 zł/m2
Opis oferty
KUPNO OD DEWELOPERA, 0% prowizjiETAP 2 - LOKAL A.4.05, balkon: 7,40 m
m-ce parkingowe w garażu: 65.000 zł ( płatne dodatkowo ) [ M-ca
garażowe na kondygnacji 0,1,2 !! ]
obejrzyj filmy na YouTube !! :
https://youtu.be/i7rCPfQwrEM?list=PL7HCvn0P1dZd3LZaoE2YNBaXG5LsMz0CZ
/ zestawienie dostępnych lokali na stronie brokera pod linkiem:
www.homeplus.pl/,1407/78/OI /
Łasztownia spaja lewo i prawobrzeżną część Szczecina, to miejsce
chętnie odwiedzane przez rowerzystów, biegaczy, wędkarzy,
spacerowiczów jak i amatorów jachtingu. Co roku odbywają się tu
Tall Ship Races i inne wydarzenia żeglarskie. Na Łasztowni
organizowane są różnego rodzaju imprezy kulturalne i sportowe,
także dla dzieci i młodzieży. Miejsce to docenili również
restauratorzy, zapełniając bulwar klimatycznymi kafejkami, oraz
wysoko ocenianymi lokalami z wyśmienitą kuchnią.
W pierwszej kolejności powstanie, usytuowany najbliżej Kanału
Zielonego, wielorodzinny budynek mieszkalny: 189 mieszkań i 23 lokale
usługowe na parterze. W trzykondygnacyjnym garażu zaprojektowano
miejsca na 218 samochodów. Budynek będzie miał łącznie 7
kondygnacji, ale w niektórych miejscach będzie obniżony do 5. lub
6.
W kolejnym drugim etapie, nieco bliżej Mostu Długiego, powstanie
budynek o wysokości od 5. do 7. kondygnacji, który również będzie
miał charakter tarasowy. Na dachu zaprojektowano dostępny dla
wszystkich mieszkańców taras widokowy, a na poziomie 3 piętra
zielony dziedziniec z placem zabaw dla dzieci. W budynku będzie 237
mieszkań, lokale usługowe, 269 miejsc parkingowych, 100 boksów na
rowery i 49 komórek lokatorskich.
W trzecim etapie, który obejmuje teren najbliżej Mostu Długiego,
powstanie budynek usługowy z apartamentami na wynajem, o łącznej
powierzchni ok. 1,5 tys. m kw. i kolejna część zabudowy
mieszkaniowej z mieszkaniami i usługami w parterze. W kompleksie
połączonych ze sobą budynków najwyższy będzie miał 9
kondygnacji. Zaplanowane chodniki, place oraz ścieżki będą z
kostki granitowej, identycznej jak położona w pasie nabrzeża. Dla
urozmaicenia posadzki placu wprowadzono wzór z płyt betonowych oraz
miejscowo – pasma świetlne ukryte w posadzce
Przestronne mieszkania z balkonami, tarasami lub ogródkami
Panoramiczne przeszklenia, malownicze widoki m.in. na Odrę, Kanał
Zielony
Wysokie lokale do 276 cm
Lokale usługowe i gastronomiczne na parterze budynku
Duża liczba miejsc parkingowych
Ekologiczne rozwiązania - zielone dachy
Położenie w sercu miasta przy bulwarach szczecińskich
Idealna lokalizacja dla miłośników sportów wodnych
EKO ROZWIĄZANIA – ZIELONE DACHY BUDYNKÓW
Instalacja dachów zielonych na budynkach wiąże się z wieloma
korzyściami, m.in. z możliwością aranżacji przestrzeni
rekreacyjno-wypoczynkowej, która tworzy zarazem izolację
akustyczną (dach zielony bardzo dobrze tłumi hałasy z zewnątrz)
i doskonałą izolację termiczną – latem dach chroni przed
nadmiernym nagrzewaniem się budynku, zimą zabezpiecza przed
wychładzaniem, zwiększając w ten sposób energooszczędność
obiektu. Zielone dachy doskonale filtrują zanieczyszczenia z
powietrza i są nieocenionym źródłem tlenu, absorbują wodę
opadową i w sposób naturalny wprowadzają ją w obieg.
___________RODO : HOMEPLUS Nieruchomości z siedzibą w (05-250)
Radzyminie, Al. Jana Pawła II 1B, informuje Państwa, iż podanie
danych jest dobrowolne, ale niezbędne w celu świadczenia usług
pośrednictwa w obrocie nieruchomościami przez nasze biuro.
Posiadają Państwo prawo dostępu do treści swoich danych i ich
sprostowania, usunięcia, ograniczenia przetwarzania, prawo do
przenoszenia danych, prawo do cofnięcia zgody w dowolnym momencie bez
wpływu na zgodność z prawem przetwarzania.
- Dane mogą być udostępniane przez HOMEPLUS podmiotom upoważnionym
do uzyskania informacji na podstawie przepisów ustawy z 21.08.1997 r.
o gospodarce nieruchomościami (Dz.U. z 2016 r. poz. 2147 ze zm.).
- Podane dane będą przetwarzane na podstawie art. 6 ust. 1 pkt a) i
zgodnie z treścią ogólnego rozporządzenia o ochronie danych.
- Administratorem danych jest HOME PLUS – Ireneusz Kurzyński oraz
HOME PLUS - Małgorzata Kosińska z siedzibą w Radzyminie , Al. Jana
Pawła II 1B, e-mail: @ Przekazane przez Państwa
osobowe będą przechowywane przez okres niezbędny do wykonania umowy
oraz dodatkowo przez okres wynikający z przepisów o przedawnieniu
roszczeń – w celu ewentualnej ochrony prawnej administratora. Nie
później niż rok po upływie tego okresu dane osobowe zostaną
trwale usunięte z systemów informatycznych, a dane papierowe –
trwale zniszczone. Mają Państwo prawo wniesienia skargi do Prezesa
Urzędu Ochrony Danych Osobowych (PUODO), gdy uznacie Państwo, iż
przetwarzanie podanych przez Państwa danych osobowych narusza
przepisy ogólnego rozporządzenia o ochronie danych osobowych z dnia
27 kwietnia 2016 r. (RODO).
---------------------
UWAGA!*Powyższe informacje nie stanowią oferty w rozumieniu Kodeksu
Cywilnego. HOMEPLUS Nieruchomości nie ponosi odpowiedzialności za
dokładność, kompletność i aktualność prezentowanych obiektów,
staramy się jednak, aby informacje dotyczące ofert były możliwie
najbardziej kompletne i aktualne.
Sprawdź zainteresowanie tym ogłoszeniem
Wyświetlenia
Data dodania
Ostatnio widziany
Obserwujących
Wysłane zapytania
Odsłony telefonu
Powiadom o podobnych ogłoszeniach
Lokalizacja: Szczecin
Kategoria: Nieruchomości » Mieszkania » Sprzedaż
Cena: od 538500 zł do 728500 zł Powierzchnia : od 37 m2 do 51 m2
Chcę otrzymywać powiadomienia o nowych ofertach
Ireneusz Kurzyński
Konto firmowe
Na Lento.pl od 03 mar 2021
Odpowiada szybko
Strona użytkownika
- Wypromuj ogłoszenie
- Zgłoś naruszenie
- Drukuj ulotkę
- Edytuj/usuń ogłoszenie
- Udostępnij ogłoszenie
- Dodaj na Facebook























