Apartament dla Inwestora Nowa Przystań
Szczecin Pokaż na mapie ›
Dodane: Piątek, 06 Luty, 2026 01:51
940 000 zł
12208 zł/m2
Szczegóły ogłoszenia
- Kategoria: Mieszkania / Sprzedaż
- Powierzchnia:77 m2
- Liczba pokoi:3 pokoje
- Zabudowa:Apartamentowiec
- Tech. budowy:Inne
- Piętro :1 piętro
- Liczba pięter:Wieżowiec
- Rynek:Pierwotny
- Rok budowy:2025
- Sprzedaż:Pośrednik
- Cena: 940 000 zł / 12208 zł/m2
Opis oferty
APARTAMENT DLA INWESTORA– Nowa Przystań, SZCZECINul. Leona Heyki,
Inwestorze! Szukasz bezpiecznej, nowoczesnej formy lokowania kapitału
w nieruchomości?
Ta oferta jest właśnie dla Ciebie!
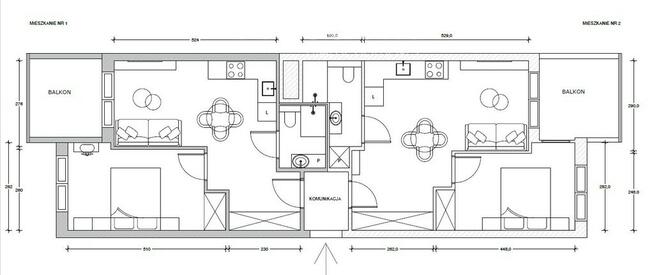
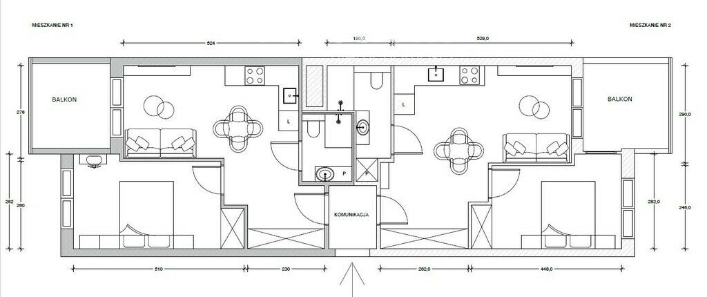
Mam przyjemność zaprezentować wyjątkowe mieszkanie w stanie
deweloperskim o powierzchni 77,94 m² ( salon z aneksem kuchennym, dwa
pokoje i łazienka i dwa ogródki) zlokalizowane na I piętrze
nowoczesnego osiedla Nowa Przystań w Szczecinie.
Nieruchomość o dużym potencjale inwestycyjnym, idealna do
przekształcenia na dwa dwupokojowe mieszkania. Przygotowany został
projekt wydzielenia dwóch mieszkań.
Projekt przewiduje dwa niezależne lokale 36,8 m² i 38,29 m² z:
osobną sypialnią salonem z aneksem kuchennym łazienką osobnym
wejściem z ogródkiem: 36 m² lub 28 m²
Idealne pod wynajem dla dwóch niezależnych najemców
miejsce postojowe w hali garażowej dodatkowo płatne– w cenie 70
000 zł
W standardzie wykończenia apartamentów przewidziano ogrzewanie
podłogowe, zapewniające komfort i nowoczesność użytkowania.
Ta inwestycja to:
stabilny zysk w długofalowej perspektywie nowoczesna forma najmu
lokata kapitału z potencjałem
Nowa Przystań to unikalna inwestycja na mapie Szczecina:
położenie bezpośrednio nad Odrą malowniczy pasaż z kafejkami i
mariną tuż obok dworca PKP – idealna lokalizacja dla turystów i
gości
Partery inwestycji Nowa Przystań przeznaczono na lokale usługowe,
które uatrakcyjnią przestrzeń i podniosą wartość inwestycyjną
osiedla.
Zrewitalizowane zostanie także nabrzeże, gdzie powstanie
ogólnodostępny deptak oraz przystań dla 20 jednostek pływających,
z czego część miejsc będzie zarezerwowana dla użytkowników
apartamentów.!
Zaledwie kilka takich układów w ofercie!
Nie przegap swojej szansy – to widok, który zapiera dech w
piersiach, i inwestycja, która może pracować na Ciebie latami.
Napisz do mnie lub zadzwoń – chętnie przedstawię szczegóły!
604 - pokaż numer telefonu -
@
"Właścicielem ogłoszenia wraz z jego elementami jest Freedom
Nieruchomości Sp. z o.o. lub podmioty współpracujące. Wszelkie
prawa zastrzeżone. Kopiowanie, rozpowszechnianie oraz korzystanie z
niniejszych materiałów w jakikolwiek inny sposób wykraczający poza
dozwolony użytek określony przepisami ustawy z 4 lutego 1994 r. o
prawie autorskim i prawach pokrewnych (Dz. U. 1994, nr 24 poz. 83 z
późn. zm.) bez pisemnej zgody Freedom Nieruchomości Sp. z o.o. lub
podmiotów współpracujących jest zabronione i może stanowić
podstawę odpowiedzialności cywilnej oraz karnej.
Ponadto niniejsze materiały stanowią tajemnicę przedsiębiorstwa
Freedom Nieruchomości Sp. z o.o. lub podmiotów współpracujących w
rozumieniu ustawy z dnia 16 kwietnia 1993 r. o zwalczaniu nieuczciwej
konkurencji (Dz. U. z 2003 r., Nr 153, poz. 1503 z późn. zm.).
Niniejsze ogłoszenie nie stanowi oferty w rozumieniu Kodeksu
Cywilnego, lecz ma charakter informacyjny."
Sprawdź zainteresowanie tym ogłoszeniem
Wyświetlenia
Data dodania
Ostatnio widziany
Obserwujących
Wysłane zapytania
Odsłony telefonu
Powiadom o podobnych ogłoszeniach
Lokalizacja: Szczecin
Kategoria: Nieruchomości » Mieszkania » Sprzedaż
Cena: od 799000 zł do 1081000 zł Powierzchnia : od 65 m2 do 89 m2
Chcę otrzymywać powiadomienia o nowych ofertach
Justyna Kaszowska
Konto firmowe
Na Lento.pl od 02 sty 2024
Odpowiada szybko
Strona użytkownika
- Wypromuj ogłoszenie
- Zgłoś naruszenie
- Drukuj ulotkę
- Edytuj/usuń ogłoszenie
- Udostępnij ogłoszenie
- Dodaj na Facebook

























