0%, 3 etap inwestycji - apartamentowiec nad Odrą
Szczecin Pokaż na mapie ›
Dodane: Niedziela, 08 Luty, 2026 09:46
464 012 zł
16000 zł/m2
Szczegóły ogłoszenia
- Kategoria: Mieszkania / Sprzedaż
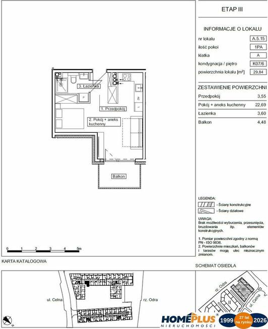
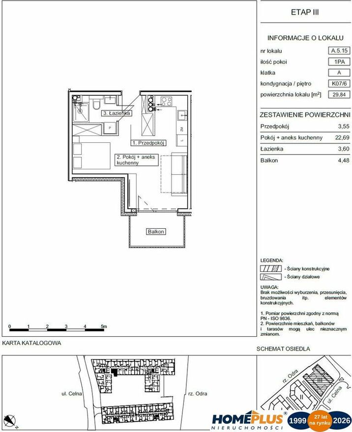
- Powierzchnia:29 m2
- Liczba pokoi:1 pokój
- Zabudowa:Apartamentowiec
- Tech. budowy:Inne
- Piętro :6 piętro
- Liczba pięter:Wieżowiec
- Rynek:Wtórny
- Rok budowy:2027
- Sprzedaż:Pośrednik
- Inf. dodatkowe:Balkon
- Cena: 464 012 zł / 16000 zł/m2
Opis oferty
0% (kupując nie płacisz prowizji !!!). Planowany termin zakończeniabudowy - II kwartał 2026 r.
Kliencie! W związku z prowadzoną bieżącą sprzedażą,
zastrzegamy, że aktualność i cena może ulec zmianie do czasu
dokonania przez Ciebie pisemnej rezerwacji oferty.
Budynek B m. A-5.15 - balkon: 4,48 m
Więcej informacji o inwestycji, harmonogramie, o standardzie i
zestawienie oferowanych mieszkań na stronie brokera pod linkiem:
www.homeplus.pl/,1876/78/OI
W trzecim etapie inwestycji powstanie budynek usługowy z
apartamentami na wynajem, o łącznej powierzchni ok. 1,5 tys. m kw. i
kolejna część zabudowy mieszkaniowej z mieszkaniami i usługami w
parterze. W kompleksie połączonych ze sobą budynków najwyższy
będzie miał 9 kondygnacji. Zaplanowane chodniki, place oraz
ścieżki będą z kostki granitowej, identycznej jak położona w
pasie nabrzeża. Dla urozmaicenia posadzki placu wprowadzono wzór z
płyt betonowych oraz miejscowo – pasma świetlne ukryte w posadzce
Przestronne mieszkania z balkonami, tarasami lub ogródkami
Panoramiczne przeszklenia, malownicze widoki m.in. na Odrę, Kanał
Zielony
Wysokie lokale do 276 cm
Lokale usługowe i gastronomiczne na parterze budynku
Duża liczba miejsc parkingowych - M-ca garażowe na kondygnacji 0,1,2
!! ( nie podziemne !! )
Ekologiczne rozwiązania - zielone dachy
Położenie w sercu miasta przy bulwarach szczecińskich
Idealna lokalizacja dla miłośników sportów wodnych
-----------------------------------------------------------------------------
Płatne dodatkowo :
Komórka przynależna - pow. od 2 m2 do 4,5 m2 - 6.000 zł/m2
Miejsce parkingowe z boksem zależnym w garażu: 65.000 zł
Miejsce parkingowe w garażu pod budynkiem: 65.000 zł
Boksy i boksy zależne - pow. od 2m2 do 4,5m2 - 4.000 zł/m2
---------------------------------------------------------------------------
EKO ROZWIĄZANIA – ZIELONE DACHY BUDYNKÓW
Instalacja dachów zielonych na budynkach wiąże się z wieloma
korzyściami, m.in. z możliwością aranżacji przestrzeni
rekreacyjno-wypoczynkowej, która tworzy zarazem izolację
akustyczną (dach zielony bardzo dobrze tłumi hałasy z zewnątrz)
i doskonałą izolację termiczną – latem dach chroni przed
nadmiernym nagrzewaniem się budynku, zimą zabezpiecza przed
wychładzaniem, zwiększając w ten sposób energooszczędność
obiektu. Zielone dachy doskonale filtrują zanieczyszczenia z
powietrza i są nieocenionym źródłem tlenu, absorbują wodę
opadową i w sposób naturalny wprowadzają ją w obieg.
Łasztownia spaja lewo i prawobrzeżną część Szczecina, to miejsce
chętnie odwiedzane przez rowerzystów, biegaczy, wędkarzy,
spacerowiczów jak i amatorów jachtingu. Co roku odbywają się tu
Tall Ship Races i inne wydarzenia żeglarskie. Na Łasztowni
organizowane są różnego rodzaju imprezy kulturalne i sportowe,
także dla dzieci i młodzieży. Miejsce to docenili również
restauratorzy, zapełniając bulwar klimatycznymi kafejkami, oraz
wysoko ocenianymi lokalami z wyśmienitą kuchnią.
___________RODO : HOMEPLUS Nieruchomości z siedzibą w (05-250)
Radzyminie, Al. Jana Pawła II 1B, informuje Państwa, iż podanie
danych jest dobrowolne, ale niezbędne w celu świadczenia usług
pośrednictwa w obrocie nieruchomościami przez nasze biuro.
Posiadają Państwo prawo dostępu do treści swoich danych i ich
sprostowania, usunięcia, ograniczenia przetwarzania, prawo do
przenoszenia danych, prawo do cofnięcia zgody w dowolnym momencie bez
wpływu na zgodność z prawem przetwarzania.
- Dane mogą być udostępniane przez HOMEPLUS podmiotom upoważnionym
do uzyskania informacji na podstawie przepisów ustawy z 21.08.1997 r.
o gospodarce nieruchomościami (Dz.U. z 2016 r. poz. 2147 ze zm.).
- Podane dane będą przetwarzane na podstawie art. 6 ust. 1 pkt a) i
zgodnie z treścią ogólnego rozporządzenia o ochronie danych.
- Administratorem danych jest HOME PLUS – Ireneusz Kurzyński oraz
HOME PLUS - Małgorzata Kosińska z siedzibą w Radzyminie , Al. Jana
Pawła II 1B, e-mail: @ Przekazane przez Państwa
osobowe będą przechowywane przez okres niezbędny do wykonania umowy
oraz dodatkowo przez okres wynikający z przepisów o przedawnieniu
roszczeń – w celu ewentualnej ochrony prawnej administratora. Nie
później niż rok po upływie tego okresu dane osobowe zostaną
trwale usunięte z systemów informatycznych, a dane papierowe –
trwale zniszczone. Mają Państwo prawo wniesienia skargi do Prezesa
Urzędu Ochrony Danych Osobowych (PUODO), gdy uznacie Państwo, iż
przetwarzanie podanych przez Państwa danych osobowych narusza
przepisy ogólnego rozporządzenia o ochronie danych osobowych z dnia
27 kwietnia 2016 r. (RODO).
---------------------
UWAGA!*Powyższe informacje nie stanowią oferty w rozumieniu Kodeksu
Cywilnego. HOMEPLUS Nieruchomości nie ponosi odpowiedzialności za
dokładność, kompletność i aktualność prezentowanych obiektów,
staramy się jednak, aby informacje dotyczące ofert były możliwie
najbardziej kompletne i aktualne.
Sprawdź zainteresowanie tym ogłoszeniem
Wyświetlenia
Data dodania
Ostatnio widziany
Obserwujących
Wysłane zapytania
Odsłony telefonu
Powiadom o podobnych ogłoszeniach
Lokalizacja: Szczecin
Kategoria: Nieruchomości » Mieszkania » Sprzedaż
Cena: od 394500 zł do 533500 zł Powierzchnia : od 25 m2 do 33 m2
Chcę otrzymywać powiadomienia o nowych ofertach
Ireneusz Kurzyński
Konto firmowe
Na Lento.pl od 03 mar 2021
Odpowiada szybko
Strona użytkownika
- Wypromuj ogłoszenie
- Zgłoś naruszenie
- Drukuj ulotkę
- Edytuj/usuń ogłoszenie
- Udostępnij ogłoszenie
- Dodaj na Facebook

















